ADU Floor Plans
Smart, Functional Guest Homes Built for Long Term Value & Arizona Living
Planned ADU &
Casita Designs
Desert Alliance Properties offers a growing collection of ADU and casita floor plans designed specifically for residential properties in Phoenix and surrounding cities. Each plan is thoughtfully laid out to maximize usable space while maintaining comfort, efficiency, and compliance with local building requirements. Our ADU floor plans are ideal for homeowners looking to add a guest house, extended family living space, or a flexible residential structure that supports long term property goals. From compact layouts to larger guest homes, our plans are designed with new construction in mind and supported by experienced engineering and construction teams.
New Construction Focus
Multiple Size Options
Residential Use
Financing Available
Why Choose Our ADU Plan
Our ADU floor plans are created to support efficient construction, comfortable living, and long term durability. Each design reflects our experience in residential development and our understanding of how ADUs function within Arizona properties.
- Floor plans designed specifically for ADU construction
- Efficient layouts that maximize living space
- Options suitable for guest houses and casitas
- Designs that support local code requirements
- Construction focused planning from start to finish
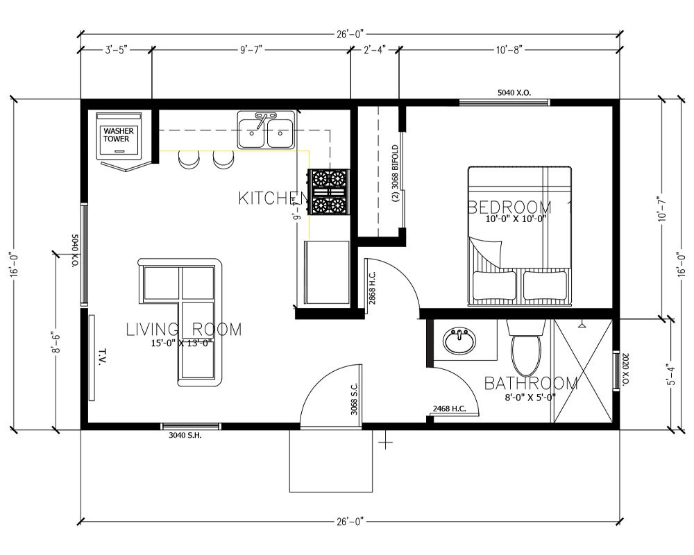
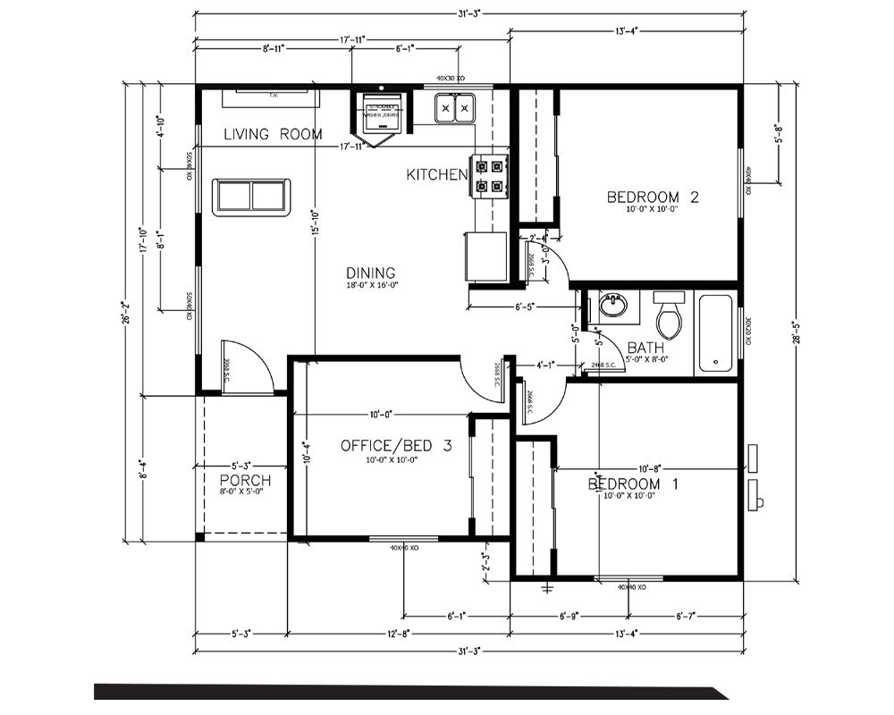
Explore Our ADU Floor Plan Gallery
Browse our gallery to view completed ADU and casita designs, including exterior renderings, floor plans, and elevation concepts built by Desert Alliance Properties.
Durango
Sol
Sahuaro
Start Planning Your ADU Project
If you are considering adding an ADU or casita to your property, our team is ready to help you explore floor plan options and next steps. Contact Desert Alliance Properties to discuss your goals, financing options, and construction timeline.