Durango
Build For 130,000$
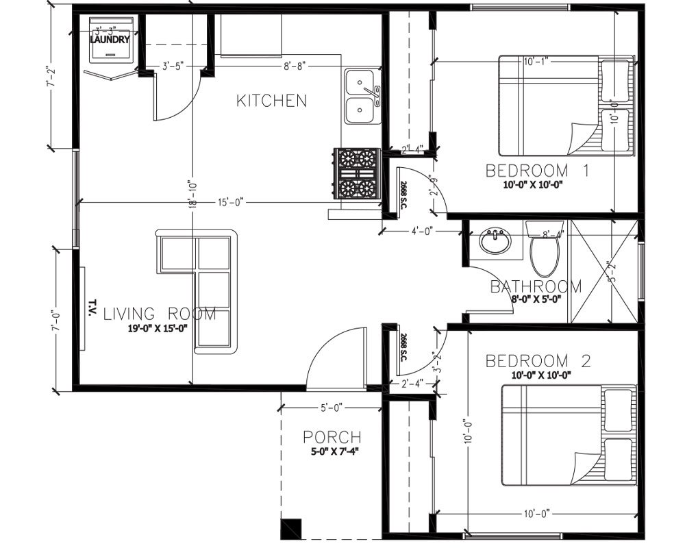
The Durango ADU is a thoughtfully designed 630 square foot guest house built to maximize living space while maintaining comfort and functionality. This accessory dwelling unit is ideal for homeowners looking to add a practical and well planned residential structure to their property. With a balanced layout that includes two bedrooms, a full bathroom, and an open living area, the Durango ADU supports everyday living without unnecessary complexity. Built as a new construction project, this design reflects Desert Alliance Properties’ focus on efficient layouts, livable space, and long term value for Arizona homeowners.
New Construction
Guest House
Efficient Layout
Long Term Value
Designed For Comfort
The Durango ADU offers a smart interior layout that supports both privacy and shared living. The open concept kitchen, living, and dining area creates a central gathering space, while the two bedrooms provide flexibility for guests or extended family use. Every square foot is used intentionally to support comfortable residential living. Durango ADU features include:
- Two standard bedrooms with closets
- One full bathroom
- Open kitchen, living, and dining area
- Pantry for added storage
- Dedicated laundry closet
ADU Option for Arizona Properties
The Durango ADU is designed for homeowners seeking a guest house or accessory dwelling unit that aligns with residential construction standards. This model supports a variety of uses while maintaining a straightforward build approach focused on quality construction and livability.
- 630 square foot guest house layout
- New construction ADU design
- Two bedroom configuration
- Functional storage and utility spaces